Skrajny segment szeregowca. Wykończony "pod klucz"



















dom w zabudowie szeregowej • na sprzedaż • rynek wtórny • Komorniki
730 000 zł
• 76 m²
9 605 zł za m2
9 605 zł za m2
4 pokoje • 3 sypialnie • 2 łazienki • Rok budowy: 2024
Kontakt
Na sprzedaż skrajny segment szeregowca w Komornikach
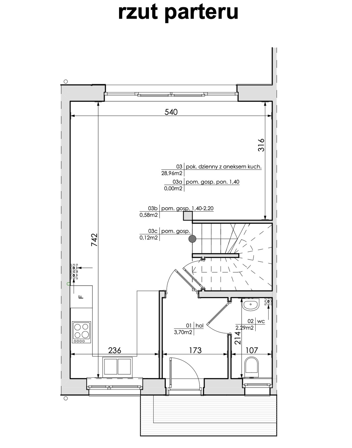
Lokal dwupoziomowy o powierzchni 75,62 m2 z miejscami postojowymi i ogródkiem. Na parterze znajduje się otwarta kuchnia z salonem, z którego przez przestronne drzwi można wyjść na taras i ogródek.
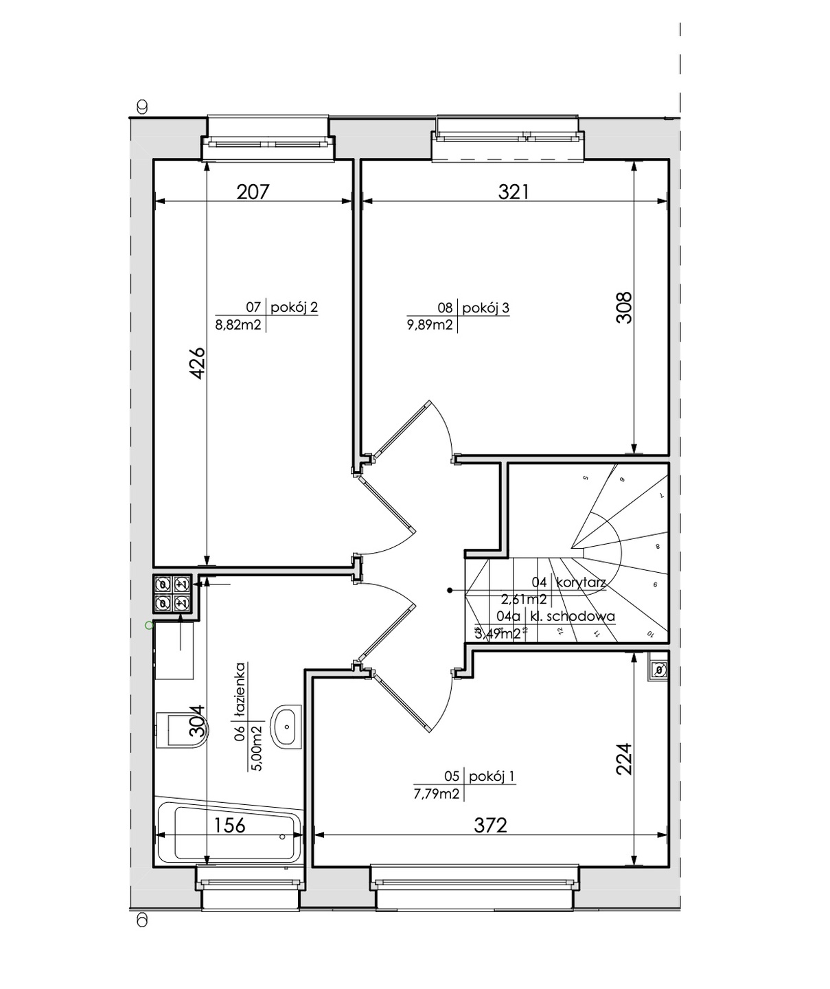
Na tym poziomie również osobna toaleta, przedsionek i betonowe schody na piętro, na którym znajdują się 3 sypialnie, łazienka z oknem i korytarz.
Rozkład pomieszczeń:
PARTER : - hol -3,94 m2 - WC 2,02 m2 - pomieszczenie pod schodami PIĘTRO: -korytarz - 2,79 m2 -klatka schodowa 3,29 m2 -sypialnia 7,80 m2 -sypialnia 8,82 m2 -sypialnia 9,89 m2 -łazienka 5 m2
Poddasze (strych) - wejście opuszczaną drabinką
Lokal nigdy nie zamieszkany, w trakcie wykańczania
Posadzki w panelach i płytkach. Kuchnia w zabudowie wraz ze sprzętem AGD (lodówko-zamrażarka, piekarnik, płyta indukcyjna, zmywarka, okap)
Dwie łazienki w jasnych płytkach. W łazience na piętrze wanna. Schody wyłożone drewnem jesionowym. Stolarka drzwiowa. Cały dom odmalowany w kolorze białym
Działka w całości ogrodzona z furtką, miejsca parkingowe i taras w kostce Ogródek o powierzchni 161 m2 Wyjście na taras od strony południowo-zachodniej
Ostatni dom na osiedlu, gwarantujący ciszę i intymność Oferta godna polecenia. Zapraszam do prezentacji. Cena 730 000 zł Bartosz Gensler
tel. 511-111-567
Gensler Nieruchomości
Luboń 62-030 ul. Poniatowskiego 22
Opis nie stanowi oferty wg przepisów Kodeksu Cywilnego Bezpieczeństwo transakcji pod nadzorem licencjonowanego pośrednika w obrocie nieruchomościami.
Licencja zawodowa 12 656
Kompleksowo bezpłatnie doradzamy w wyborze najkorzystniejszego kredytu hipotecznego
Posadzki w panelach i płytkach. Kuchnia w zabudowie wraz ze sprzętem AGD (lodówko-zamrażarka, piekarnik, płyta indukcyjna, zmywarka, okap)
Dwie łazienki w jasnych płytkach. W łazience na piętrze wanna. Schody wyłożone drewnem jesionowym. Stolarka drzwiowa. Cały dom odmalowany w kolorze białym
Działka w całości ogrodzona z furtką, miejsca parkingowe i taras w kostce Ogródek o powierzchni 161 m2 Wyjście na taras od strony południowo-zachodniej
Ostatni dom na osiedlu, gwarantujący ciszę i intymność Oferta godna polecenia. Zapraszam do prezentacji. Cena 730 000 zł Bartosz Gensler
tel. 511-111-567
Gensler Nieruchomości
Luboń 62-030 ul. Poniatowskiego 22
Opis nie stanowi oferty wg przepisów Kodeksu Cywilnego Bezpieczeństwo transakcji pod nadzorem licencjonowanego pośrednika w obrocie nieruchomościami.
Licencja zawodowa 12 656
Kompleksowo bezpłatnie doradzamy w wyborze najkorzystniejszego kredytu hipotecznego
- od kiedy dostępna: 2024-03-09
- powierzchnia: 76 m2
- powierzchnia działki: 150 m2
- liczba pokoi: 4 pokoje
- liczba sypialni: 3 sypialnie
- liczba łazienek: 2 łazienki
- kuchnia: aneks
- wyposażenie: lodówka, ogrzewanie własne, parking, umeblowana kuchnia, zmywarka, ogródek
- parking: miejsce postojowe
- liczba miejsc parkingowych: 2
- rok budowy: 2024
- kondygnacje: parter, I piętro, strych
- media: gaz, internet, kanalizacja, prąd, woda
- okna: północny-wschód, południowy-zachód
- konstrukcja budynku: cegła
- glazura: nowa
- podłogi: gres, panele
- ciepła woda: gazowe, piec
- ogrzewanie: gazowe własne, własne
- data ostatniej aktualizacji: 11 Marzec 2026
Dane kontaktowe

Gensler Nieruchomości
ul. Józefa Poniatowskiego 22
62-030 Luboń
woj. wielkopolskie
tel: +48 511 111 567
numer licencji: 12656













