Środkowy segment szeregowca w Luboniu




















dom w zabudowie szeregowej • na sprzedaż • rynek pierwotny • Luboń
599 000 zł
• 90 m²
6 656 zł za m2
6 656 zł za m2
4 pokoje • 3 sypialnie • 2 łazienki • Rok budowy: 2024
Kontakt
Na sprzedaż środkowy segment szeregowca o powierzchni użytkowej 90 m.kw. w Luboniu (Lasek)
Lokal dwupoziomowy oddawany w standardzie developerskim
Rozkład pomieszczeń:
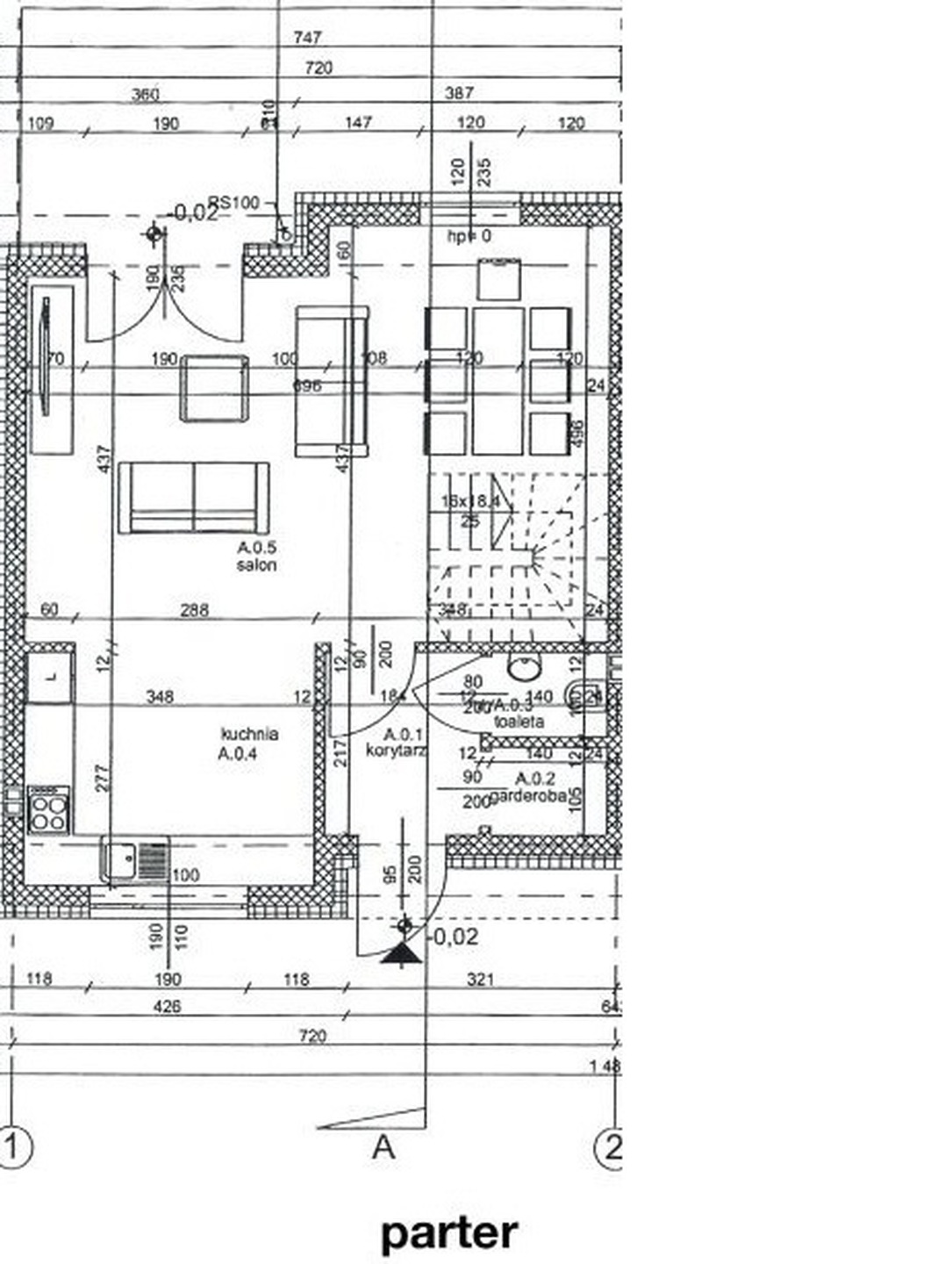
Parter: korytarz, garderoba, WC, salon 30 m.kw., otwarta kuchnia 9 m.kw. (możliwość zamknięcia kuchni). Wyjście na taras od strony południowo-zachodniej
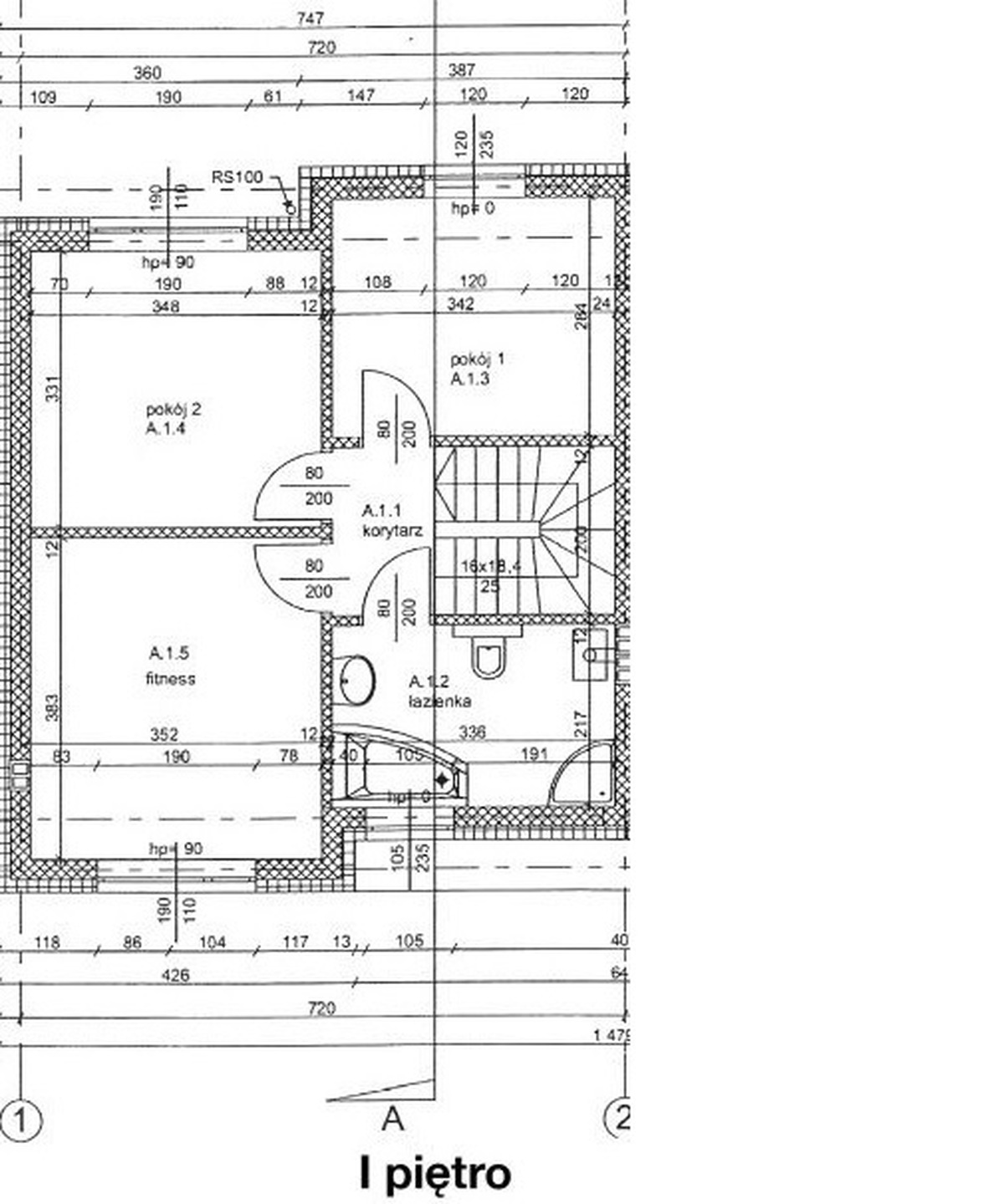
Piętro: korytarz, 3 przestronne pokoje oraz łazienka ok 7 m.kw.
Poddasze po podłodze ok 40 m.kw (drabinka na poddasze)
Stan developerski obejmuje:
1)Ściany:
-murowane grubość 25 cm
-styropian grubość 15 cm
2)Dach:
-piętro:płyta gipsowo-kartonowa ocieplona wełną mineralną 25 cm
-poddasze:płyta OSB
-dachówka cementowa firmy BRASS
3)Tynki:
-wewnętrzne maszynowe
-zewnętrzne mineralne
4)Drzwi wejściowe KMT
5)Okna plastikowe 3 szybowe z roletami zewnętrznymi (drzwi tarasowe napęd elektryczny, pozostałe ręczne).
6)Posadzki-wylewka betonowa
-parter-styropian 10 cm
-piętro-styropian 4 cm
7)Zagospodarowanie terenu:
-miejsce postojowe na dwa samochody przed budynkiem
-taras w kostce
-ogrodzenie z siatki
-teren uporządkowany
8)Przyłącze prądu, gazu, wody
9)Przyłącze kanalizacyjne-szambo 5 m3 (każdy lokal ma własne szambo przed budynkiem, pod jednym z miejsc postojowych)
10)Instalacje wewnętrzne:
-centralne ogrzewanie-piec gazowy + grzejniki 6 szt.(bez grzejnika łazienkowego)
-instalacje elektryczne-bez białego montażu
-instalacja kanalizacji-wewnętrzna
-instalacja wodociągowa -wewnętrzna
-instalacja alarmowa-bez centrali, czujników
-instalacja wewnętrzna gazowa
12) Wyłaz na poddasze. Poddasze ok. 40 m, wyłożone płyta OSB
UWAGA: schody we własnym zakresie
Brak czynszu. Wszystkie opłaty miesięczne wg własnego zużycia
Powierzchnia ogródka ok. 45 m2
Media: prąd, woda, gaz, szambo
Oferta bezpośrednio od developera. Kupujący nie płaci prowizji.
Cena 599 000 zł
Pozdrawiam
Bartosz Genslertel. 511-111-567Licencja zawodowa 12656
Gensler NieruchomościLuboń 62-030ul. Poniatowskiego 22
Powyższa wiadomość ma charakter informacyjny i nie stanowi oferty w rozumieniu przepisów k.c.
Lokal dwupoziomowy oddawany w standardzie developerskim
Rozkład pomieszczeń:
Parter: korytarz, garderoba, WC, salon 30 m.kw., otwarta kuchnia 9 m.kw. (możliwość zamknięcia kuchni). Wyjście na taras od strony południowo-zachodniej
Piętro: korytarz, 3 przestronne pokoje oraz łazienka ok 7 m.kw.
Poddasze po podłodze ok 40 m.kw (drabinka na poddasze)
Stan developerski obejmuje:
1)Ściany:
-murowane grubość 25 cm
-styropian grubość 15 cm
2)Dach:
-piętro:płyta gipsowo-kartonowa ocieplona wełną mineralną 25 cm
-poddasze:płyta OSB
-dachówka cementowa firmy BRASS
3)Tynki:
-wewnętrzne maszynowe
-zewnętrzne mineralne
4)Drzwi wejściowe KMT
5)Okna plastikowe 3 szybowe z roletami zewnętrznymi (drzwi tarasowe napęd elektryczny, pozostałe ręczne).
6)Posadzki-wylewka betonowa
-parter-styropian 10 cm
-piętro-styropian 4 cm
7)Zagospodarowanie terenu:
-miejsce postojowe na dwa samochody przed budynkiem
-taras w kostce
-ogrodzenie z siatki
-teren uporządkowany
8)Przyłącze prądu, gazu, wody
9)Przyłącze kanalizacyjne-szambo 5 m3 (każdy lokal ma własne szambo przed budynkiem, pod jednym z miejsc postojowych)
10)Instalacje wewnętrzne:
-centralne ogrzewanie-piec gazowy + grzejniki 6 szt.(bez grzejnika łazienkowego)
-instalacje elektryczne-bez białego montażu
-instalacja kanalizacji-wewnętrzna
-instalacja wodociągowa -wewnętrzna
-instalacja alarmowa-bez centrali, czujników
-instalacja wewnętrzna gazowa
12) Wyłaz na poddasze. Poddasze ok. 40 m, wyłożone płyta OSB
UWAGA: schody we własnym zakresie
Brak czynszu. Wszystkie opłaty miesięczne wg własnego zużycia
Powierzchnia ogródka ok. 45 m2
Media: prąd, woda, gaz, szambo
Oferta bezpośrednio od developera. Kupujący nie płaci prowizji.
Cena 599 000 zł
Pozdrawiam
Bartosz Genslertel. 511-111-567Licencja zawodowa 12656
Gensler NieruchomościLuboń 62-030ul. Poniatowskiego 22
Powyższa wiadomość ma charakter informacyjny i nie stanowi oferty w rozumieniu przepisów k.c.
- od kiedy dostępna: 2024-04-16
- powierzchnia: 90 m2
- powierzchnia działki: 120 m2
- liczba pokoi: 4 pokoje
- liczba sypialni: 3 sypialnie
- liczba łazienek: 2 łazienki
- kuchnia: otwarta
- wyposażenie: taras, ogrzewanie własne, ogródek
- parking: miejsce postojowe, na podwórku
- liczba miejsc parkingowych: 2
- rok budowy: 2024
- kondygnacje: parter, I piętro
- okolica: apteka, autobus, centrum handlowe, autostrada, las, miasto, niska zabudowa, park, plac zabaw, przedszkole, sklep spożywczy, spokojna okolica, supermarket, szkoła, żłobek
- okna: południowy-zachód
- konstrukcja budynku: cegła
- ciepła woda: gazowe
- ogrzewanie: gazowe, gazowe własne
Dane kontaktowe

Gensler Nieruchomości
ul. Józefa Poniatowskiego 22
62-030 Luboń
woj. wielkopolskie
tel: +48 511 111 567
numer licencji: 12656









